32ft Portable Site Canteen Cabins

Available in the following conditions:

New

UK or European built, then delivered to a UK depot with no prior operational use

Your Warranty


Buy or Hire


Various colours

Choose a colour

Enquire now

Key Features

  • Secure doors and windows
  • Fully insulated
  • Heavy duty vinyl floor
  • Anti-vandal construction
  • Lighting and electrics
  • White board and pin board
  • Available for sale and hire
  • Sink and water heater

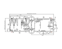
Length: 32ft (9740mm)

Width: 10ft (2980mm)

Height: 8ft 4ins (2545mm)

Weight: 4,900kg

Specification drawing for 32ft canteen accommodation unit

OVERVIEW

The 32ft site canteen is the largest canteen we offer. Designed to offer bigger crews the perfect refuge on large scale projects.

Ideal for teams that need a generous dining space across a range of sectors, from full site refurbishments to long term construction projects our canteens provide a reliable breakspace across a range of tough environments. Every 32ft canteen is insulated and supplied with a stainless steel sink, worktop and cupboard, plus a dedicated water heater, internal LED lighting and electrics. 

A secure personnel door and lockable, shuttered uPVC windows help protect the site canteen against vandalism and theft, even on long term projects. Alongside the canteens anti-vandal features, all of our canteens also have steel walls, a Zintec roof and easy clean vinyl flooring to support heavy daily use.

Intended use

APPLICATIONS

Our 32ft site canteen gives larger teams a reliable place to rest and recharge on site, with specific applications including: 

  • Construction and civils projects - perfect welfare facilities for multi trade teams working on construction projects of all kinds.
  • Roadworks and groundworks - ideal breakspaces for roadworks or groundwork projects
  • Energy and renewables - remote welfare for wind, solar and grid connection crews.
  • Schools, healthcare and public buildings - temporary dining or staff respite during refurbishments.
  • Events and film production - crew catering and rest area behind the scenes.

FAQ

Yes, you can hire or buy our 32ft canteen cabin.

Lead times depend on location. Contact our team and we will confirm delivery timescales.

The unit features a heavy duty steel shell, secure personnel door and lockable shuttered windows to help deter vandalism.

Yes. Delivery and installation can be arranged from our depots. The canteen will be positioned and handed over ready for immediate use. Customers only need to ensure the ground is level and ready for placement.

Alongside the 32ft unit we also supply 20ft site canteens